0
  • Acheter De l'ancien
  • Louer
Dans un rayon de
Budget
Mini
Maxi

    Faites estimer votre bien par un professionnel

    Estimer votre bien
    5 Pièce(s)
    2 Chambre(s)

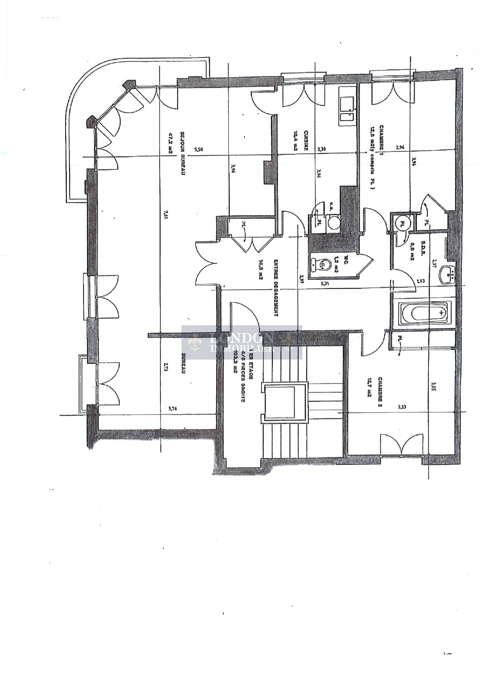
    Quartier Notre Dame appartement 5 pièces avec ascenseur

    Versailles (78000)
    Réf : LMVAP50000154

    Quartier Notre Dame, boulevard de la Reine, emplacement privilégié pour cet appartement bien agencé de 101.42 m2 Carrez.

    Séjour double en rotonde, 2 chambres, bureau (ou 3ème chambre), cuisine, salle de bains, wc. Cave et parking. Ascenseur.

    A proximité du marché Notre Dame, des commerces du quartier, de la gare et des écoles.


    Les informations sur les risques auxquels ce bien est exposé sont disponibles sur le site Géorisques

    En Bref

    Code postal 78000
    Surface habitable (m²) 101,42 m²
    Surface loi Carrez (m²) 101,42 m²
    Nombre de chambre(s) 2
    Nombre de pièces 5
    Etage 1
    Nombre de niveaux 1
    Ascenseur OUI
    Vue Dégagée
    Nb de salle de bains 1
    Cuisine Séparée
    Type de cuisine SEMI-EQUIPEE
    Mode de chauffage Gaz
    Type de chauffage TRAD_TYPE_CHAUFF_CHAUDIERE
    Format de chauffage Collectif
    Balcon OUI
    Terrasse NON
    Cave OUI
    Exposition Nord-Ouest
    Année de construction 1960

    Infos financières

    Charges 448 €
    Taxe foncière annuelle 1 871 €
    Ces biens peuvent vous intéresser